WOŁOMIN UL. WIEJSKA/TRAUGUTTA

KARTA LOKALU

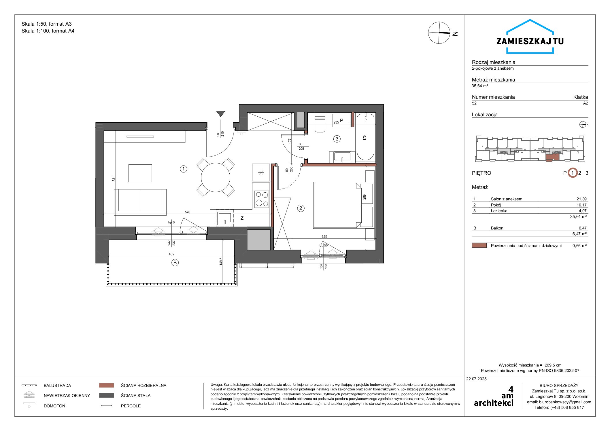
Mieszkanie 52

Metraż mieszkania35,64 m2
PiętroPiętro 1
KlatkaA2
Liczba pokoi2
Powierzchnia pod ścianami działowymi : 0,66

Rzut piętra

Karta lokalu PDF

Powierzchnie pomieszczeń

Salon z aneksem kuchennym21,39
Pokój10,17
Łazienka4,07

Taras/balkon/ogródek

Balkon (m2)6,47

ZAPYTAJ O TO MIESZKANIE

    *Pola obowiązkowe

    Firma Bańkowscy Spółka Jawna powstała w 2005 roku. Otwierając własną działalność gospodarczą chcieliśmy wykorzystać swoje doświadczenie w przemyśle budowlanym, tak aby stworzyć firmę, która będzie bazowała na dobrych i sprawdzonych rozwiązaniach.

    Dane kontaktowe

    Bańkowscy Spółka Jawna
    ul. Legionów 8, 05-200 Wołomin

    UP
    Zamieszkajtu.com
    Przegląd prywatności

    Ta strona korzysta z ciasteczek, aby zapewnić Ci najlepszą możliwą obsługę. Informacje o ciasteczkach są przechowywane w przeglądarce i wykonują funkcje takie jak rozpoznawanie Cię po powrocie na naszą stronę internetową i pomaganie naszemu zespołowi w zrozumieniu, które sekcje witryny są dla Ciebie najbardziej interesujące i przydatne.