WOŁOMIN UL. WIEJSKA/TRAUGUTTA

KARTA LOKALU

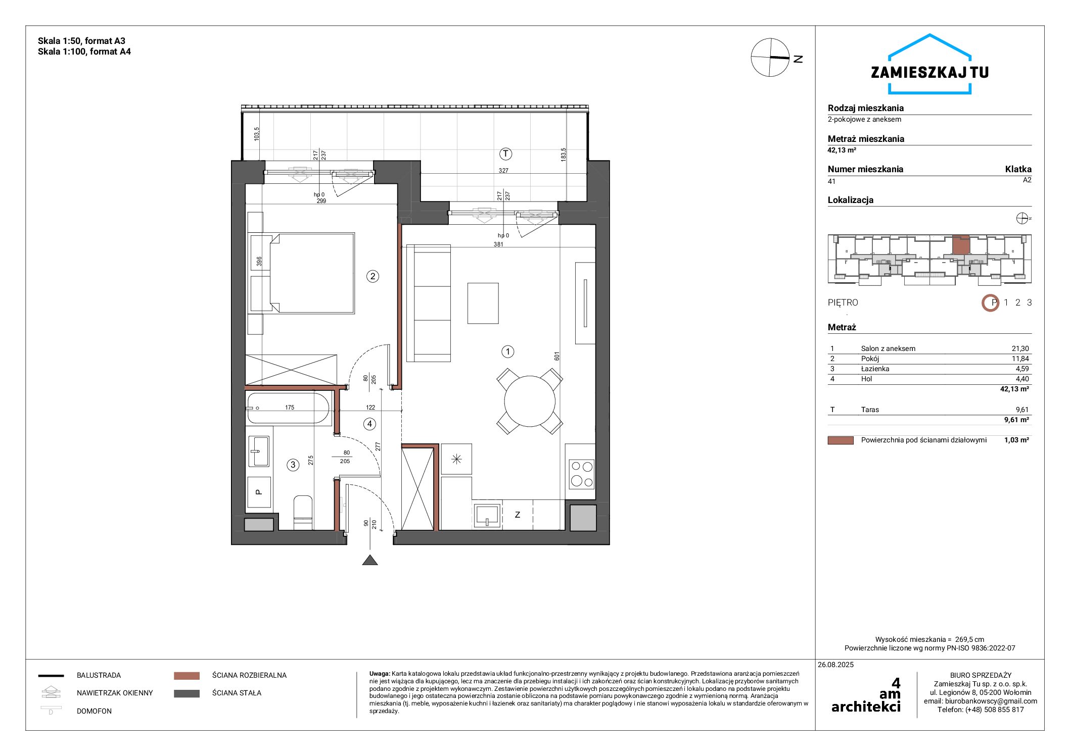
Mieszkanie 41

Cena: 564.542 
Metraż mieszkania42,13 m2
PiętroParter
KlatkaA2
Liczba pokoi2
Powierzchnia pod ścianami działowymi : 1,03

Rzut piętra

Karta lokalu PDF

Powierzchnie pomieszczeń

Salon z aneksem kuchennym21,30
Pokój11,84
Łazienka4,59
Hol4,40

Taras/balkon/ogródek

Taras (m2)7,79

ZAPYTAJ O TO MIESZKANIE

    *Pola obowiązkowe

    Firma Bańkowscy Spółka Jawna powstała w 2005 roku. Otwierając własną działalność gospodarczą chcieliśmy wykorzystać swoje doświadczenie w przemyśle budowlanym, tak aby stworzyć firmę, która będzie bazowała na dobrych i sprawdzonych rozwiązaniach.

    Dane kontaktowe

    Bańkowscy Spółka Jawna
    ul. Legionów 8, 05-200 Wołomin

    UP
    Zamieszkajtu.com
    Przegląd prywatności

    Ta strona korzysta z ciasteczek, aby zapewnić Ci najlepszą możliwą obsługę. Informacje o ciasteczkach są przechowywane w przeglądarce i wykonują funkcje takie jak rozpoznawanie Cię po powrocie na naszą stronę internetową i pomaganie naszemu zespołowi w zrozumieniu, które sekcje witryny są dla Ciebie najbardziej interesujące i przydatne.