WOŁOMIN UL. WIEJSKA/TRAUGUTTA

KARTA LOKALU

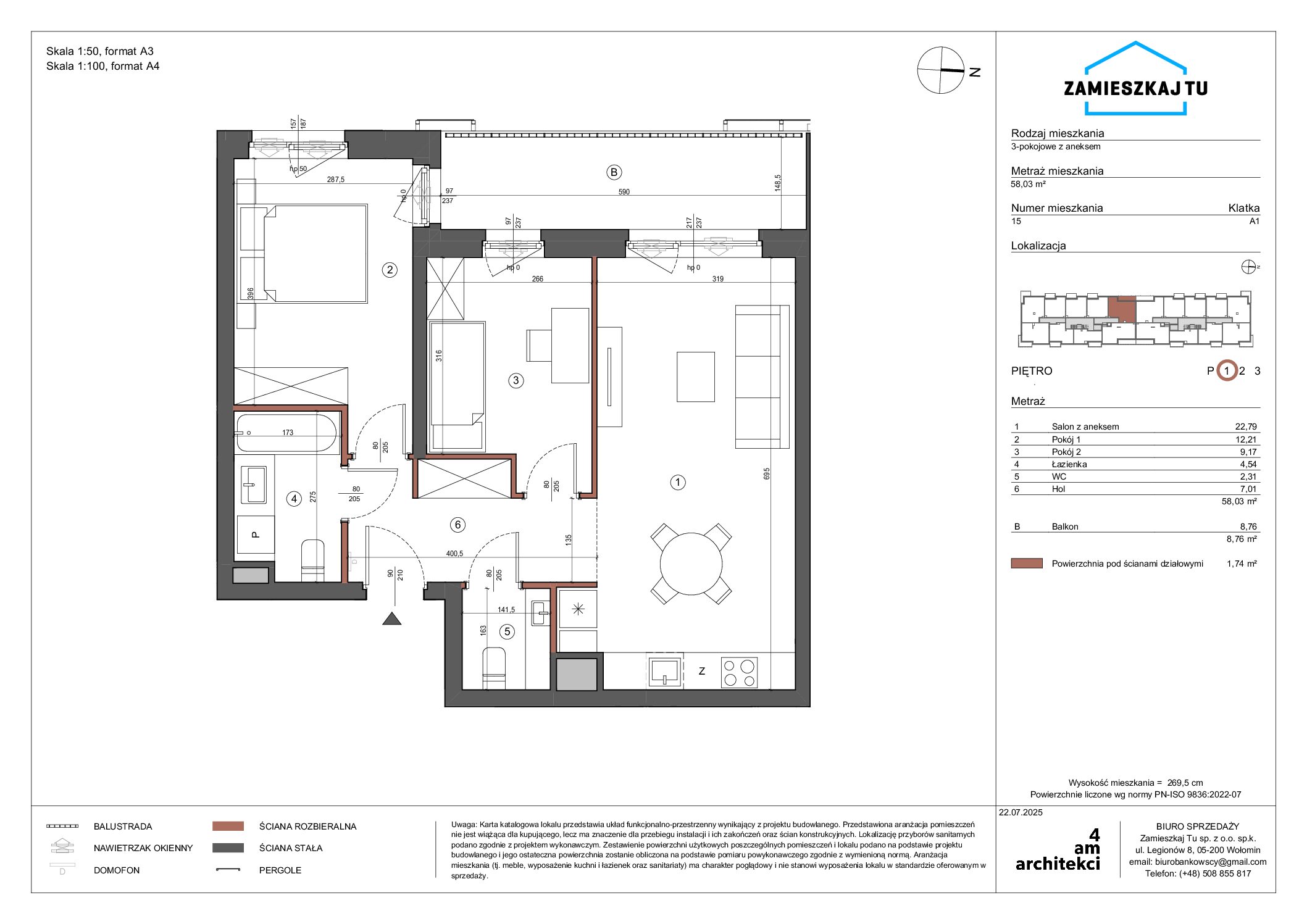
Mieszkanie 15

Metraż mieszkania58,47 m2
PiętroPiętro 1
KlatkaA1
Liczba pokoi3
Powierzchnia pod ścianami działowymi : 1,74

Rzut piętra

Karta lokalu PDF

Powierzchnie pomieszczeń

Salon z aneksem kuchennym22,79
Pokój12,21
Pokój9,62
Łazienka4,54
WC2,31
Hol7,01

Taras/balkon/ogródek

Balkon (m2)8,72

ZAPYTAJ O TO MIESZKANIE

    *Pola obowiązkowe

    Firma Bańkowscy Spółka Jawna powstała w 2005 roku. Otwierając własną działalność gospodarczą chcieliśmy wykorzystać swoje doświadczenie w przemyśle budowlanym, tak aby stworzyć firmę, która będzie bazowała na dobrych i sprawdzonych rozwiązaniach.

    Dane kontaktowe

    Bańkowscy Spółka Jawna
    ul. Legionów 8, 05-200 Wołomin

    UP
    Zamieszkajtu.com
    Przegląd prywatności

    Ta strona korzysta z ciasteczek, aby zapewnić Ci najlepszą możliwą obsługę. Informacje o ciasteczkach są przechowywane w przeglądarce i wykonują funkcje takie jak rozpoznawanie Cię po powrocie na naszą stronę internetową i pomaganie naszemu zespołowi w zrozumieniu, które sekcje witryny są dla Ciebie najbardziej interesujące i przydatne.